Telefon: 06221 4799-0
E-Mail schreiben
Kontrast umschalten
Kaufen

4-Zimmer-Neubauwohnung am Neckar

  • 69118 Heidelberg

urbannature – Leben am Neckar! Naturbewusst leben für Jung und Alt: ob als Zuhause für Familien, Paare, Single oder Hundefreunde, ob als Altersruhe- oder Zweitwohnsitz – wer hier wohnt, weiß Natur und Stadtnähe gleichermaßen zu schätzen.

Auf dem rund 9.420 Quadratmeter großen Areal entstehen bis Herbst 2026 rund 3.300 Quadratmeter Wohnfläche – verteilt auf 26 Wohnungen sowie 4 Doppelhaushälften in insgesamt sechs in Holzbauweise ausgeführten Gebäuden in KfW55-Energieeffizienzstandard sowie eine gemeinschaftliche Sockelgarage.

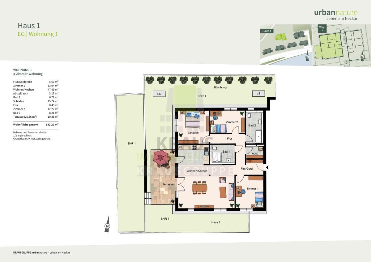
Die zum Verkauf stehende 4-Zimmer-Wohnung befindet sich im Erdgeschoss des Mehrfamilienhauses mit Aufzug (Haus 1) und erstreckt sich über ca. 132,22 m² Wohnfläche (Wohnung-Nr. 01). Über den Flur gelangen Sie zum großzügigen Wohn- und Esszimmer mit offener Küche und Zugang zu der nach Westen gelegenen Terrasse mit einem großzügigen Gartenanteil, der zur Erholung im Grünen einlädt. Die Wohnung verfügt über ein Schlafzimmer und zwei weitere Zimmer, die als Kinder- oder Arbeitszimmer genutzt werden können. Der Grundriss wird vervollständigt durch ein Tageslichtbad mit Wanne und WC, ein zweites Bad mit barrierefreier Dusche und WC sowie einen Abstellraum mit Waschmaschinenanschluss.

Die Ausstattung ist modern und nachhaltig zugleich. Alle Wohnräume und Flure werden mit Parkettböden belegt und mit Fußbodenheizung ausgestattet; Küche und Bäder erhalten einen keramischen Bodenbelag. Große Holz-Fensterfronten mit elektrisch steuerbarem Sonnenschutz, helles Malervlies sowie Sichtholzdecken vermitteln ein Gefühl von Modernität und Behaglichkeit.

Im Untergeschoss ist der Wohnung ein Kellerraum zugeordnet.

Über den Aufzug erreichen Sie bequem die Tiefgarage. Hier können einer oder mehrere PKW-Stellplätze erworben werden. Im gemeinsamen Innenhof stehen mehrere überdachte Fahrradstellplätze zur Verfügung.

Haben Sie Interesse und wünschen weitere Informationen? Gerne senden wir Ihnen das Exposé und weitere Daten. Bitte senden Sie uns eine Mail mit Angabe Ihres Namens, Anschrift und Telefonnummer oder nutzen Sie direkt das Kontaktformular.

Lage & Infrastruktur

Zwischen der Heidelberger Altstadt und dem östlich gelegenen Stadtteil Ziegelhausen befindet sich direkt an der Gemarkungsgrenze zum Stadtteil Neuenheim und mitten im Landschaftschutzgebiet das Grundstück „In der Neckarhelle 168 – 186“ – ein herrliches Stück Land auf der Sonnenseite des Neckarufers und direkt am Naturschutz- und Wandergebiet Russenstein gelegen. Das Naturschutzgebiet „Felsenmeer, Russenstein, Naturpark Michalsbrunnen“ ist geprägt durch Eichen-Buchen-Wälder und imponiert mit dem klippenartigen Wilckensfelsen und ist dadurch ein beliebtes und endrucksvolles Ausflugsziel direkt am nördlichen Neckarufer. Von hier aus genießt man einen wunderbaren Ausblick auf Neckarbogen und Berge, sowie auf das berühmte Heidelberger Schloss.

Der Stadtteil Ziegelhausen bietet zahlreiche Angebote des täglichen Bedarfs vom Friseur über Einzelhandel, Ärzte und Restaurants bis hin zum Hallenbad Köpfel. Außerdem bietet Ziegelhausen zahlreiche Kindertagestätten und zwei Grund- und Hauptschulen, eine weitere kommt in Schlierbach hinzu. Eine Grund- und Realschule befindet sich im nahegelegenen Neuenheim. Verschiedene Gymnasien finden sich in näheren Umgebung.

Die Alte Brücke und somit die Heidelberger Altstadt sind fußläufig in rund 20 Minuten erreichbar. Mit dem Fahrrad unterwegs sind Sie in ca. 6 Minuten am Universitätsplatz. Die Bushaltestelle befindet sich direkt am Nachbargrundstück und lässt Sie mit den Linien 34, 37 und 3 schnell die Innenstadt, das Neuenheimer Feld sowie weitere Stadtteile erreichen. Mit dem PKW sind Sie in etwa 12 Minuten auf A656 in Richtung Mannheim oder auf A5 in Richtung Frankfurt oder Stuttgart.