Das Gebäude ist ein Kulturdenkmal und wurde 1867 auf einem ca. 454 m² großen Grundstück errichtet. Es befindet sich inmitten der Heidelberger Fußgängerzone. Diese verläuft vom Bismarckplatz zum Karlstor – quer durch die Heidelberger Altstadt.
In den letzten Jahren wurden immer wieder Renovierungsmaßnahmen durchgeführt; so erfolgte z.B. 2005 der Einbau einer neuen Fernwärme-Heizungsanlage. Der aktuelle Bestand wurde 2025 durch einen Aufzug erweitert, sodass die Einheiten nun bequem erreichbar sind. Der Anbau befindet sich im Innenhof, welcher dennoch über eine ausreichende Freifläche verfügt.
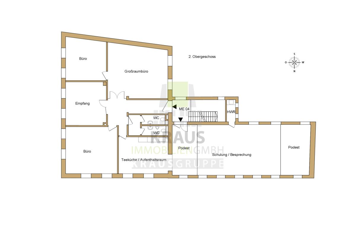
Die zu vermietende Bürofläche im 2. Obergeschoss steht nach Absprache zur Verfügung. Die Mietfläche beträgt ca. 290,70 m² und ist klimatisiert. Die Einheit verfügt über einen Empfangsraum und einen geräumigen Personalraum mit einer Einbauküche: Spüle, Spülmaschine, Kühlschrank und div. Schränke. Weitere 4 Büroräume sowie einen großen Raum mit Podesten, der ideal für Schulungen und Seminare genutzt werden kann, bietet Ihnen diese Einheit. Der Grundriss wird vervollständigt durch getrennte Damen- und Herren WC´s.
Im Kellerbereich von insgesamt ca. 140 m² kann ein Kellerabteil ganz nach Ihrem Bedarf ausgewählt werden.
Stellplätze stehen auf dem Grundstück leider nicht zur Verfügung, daher müssen die umliegenden Parkhäuser genutzt werden.
In Heidelberg, der drittgrößten Stadt der Metropolregion Rhein-Neckar, leben ca. 160.000 Einwohner.
Als eine der wenigen Städte Deutschlands blieb Heidelberg von der Zerstörung im 2. Weltkrieg weitgehend verschont. Daher kann sich auch heute noch jeder an den historischen Gebäuden der barocken Altstadt erfreuen.
Hier befindet sich auch die stark frequentierte Fußgängerzone, in der sich neben Geschäften namhafter Marken auch Cafés, Restaurants, Hotels und viele kulturelle Einrichtungen befinden.
Das Haus liegt ca. 900 m in östlicher Richtung vom Bismarckplatz entfernt und kann mit dem Auto am besten über die Seitenstraße (Bienenstraße) erreicht werden.
Die Hauptstraße ist grundsätzlich autofrei, jedoch sind Anlieferungen werktags bis 11 Uhr gestattet.
Sie müssen den Inhalt von reCAPTCHA laden, um das Formular abzuschicken. Bitte beachten Sie, dass dabei Daten mit Drittanbietern ausgetauscht werden.
Mehr InformationenSie sehen gerade einen Platzhalterinhalt von Turnstile. Um auf den eigentlichen Inhalt zuzugreifen, klicken Sie auf die Schaltfläche unten. Bitte beachten Sie, dass dabei Daten an Drittanbieter weitergegeben werden.
Mehr InformationenSie sehen gerade einen Platzhalterinhalt von Vimeo. Um auf den eigentlichen Inhalt zuzugreifen, klicken Sie auf die Schaltfläche unten. Bitte beachten Sie, dass dabei Daten an Drittanbieter weitergegeben werden.
Mehr InformationenSie sehen gerade einen Platzhalterinhalt von YouTube. Um auf den eigentlichen Inhalt zuzugreifen, klicken Sie auf die Schaltfläche unten. Bitte beachten Sie, dass dabei Daten an Drittanbieter weitergegeben werden.
Mehr InformationenSie müssen den Inhalt von reCAPTCHA laden, um das Formular abzuschicken. Bitte beachten Sie, dass dabei Daten mit Drittanbietern ausgetauscht werden.
Mehr InformationenSie sehen gerade einen Platzhalterinhalt von Facebook. Um auf den eigentlichen Inhalt zuzugreifen, klicken Sie auf die Schaltfläche unten. Bitte beachten Sie, dass dabei Daten an Drittanbieter weitergegeben werden.
Mehr InformationenSie sehen gerade einen Platzhalterinhalt von Instagram. Um auf den eigentlichen Inhalt zuzugreifen, klicken Sie auf die Schaltfläche unten. Bitte beachten Sie, dass dabei Daten an Drittanbieter weitergegeben werden.
Mehr InformationenSie sehen gerade einen Platzhalterinhalt von X. Um auf den eigentlichen Inhalt zuzugreifen, klicken Sie auf die Schaltfläche unten. Bitte beachten Sie, dass dabei Daten an Drittanbieter weitergegeben werden.
Mehr Informationen