Telefon: 06221 4799-0
E-Mail schreiben
Kontrast umschalten
Mieten

Attraktive Bürofläche im außergewöhnlichen Ambiente

  • 69123 Heidelberg

Im Jahr 2004 wurde dieses schöne Gebäude mit einem einzigartigen Konzept zu neuem Leben erweckt.
Das denkmalgeschützte Industriegebäude wurde umfassend sowie nachhaltig saniert. Heute ist das Heinsteinwerk von Gewerbemietern aus unterschiedlichsten Branchen belegt.

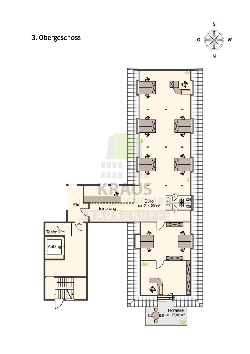
Die zu vermietende Einheit liegt im 3. Obergeschoss des Gebäudes und ist bequem mit dem Aufzug erreichbar. Die Mietfläche erstreckt sich über ca. 232,93 m². m². Sie ist derzeit aufgeteilt in ein Großraumbüro und zwei weitere Büroräume. Von dem Büro auf der Westseite der Einheit, kann man den Balkon betreten. Die Bürofläche verfügt über einen ansprechenden Empfang, in dem ein Wartebereich für Kunden integriert werden kann. Der Grundriss wird durch getrennte Damen und Herren WC`s vervollständigt.

Die gesamte Büroeinheit ist klimatisiert!

In der Tiefgarage können bei Bedarf PKW-Stellplätze angemietet werden.

Lage & Infrastruktur

Dieser Bürobau befindet sich am westlichen Stadteingang zwischen den Stadtteilen Wieblingen und Bergheim.
Somit ist das Gebäude von der Autobahn, OEG sowie der S-Bahn sehr gut sichtbar.

Das attraktive Gesamtensemble von Heinsteinwerk und H+, genießt eine optimale Anbindung an den ÖPNV (DB, OEG, HSB, S-Bahn) sowie den Individualverkehr.

Im gesamten Gewerbekomplex haben sich im Laufe der Zeit Unternehmen aus unterschiedlichsten Branchen angesiedelt.

Neben der guten Anbindung an die Bahnstadt und die Innenstadt, ist die unmittelbare Nähe zum Klinikum im Neuenheimer Feld sowie zum SRH-Campus ein weiterer Vorteil.

Grundrisse

Grundriss